Abitazione con garage, magazzino e cortile – Piacenza d’Adige (PD)
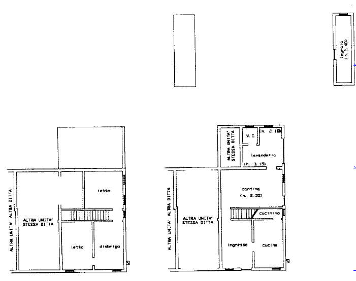
Vendesi adiacente al centro, fronte strada primaria, ingresso da strada laterale capannone di ottima qualità e finiture con pannelli in graniglia, comprende sullo stesso sedime: al piano terra androne d’ingresso, disimpegno, quattro uffici, servizi igienici con impianto riscaldamento, clima, serramenti vetrocamera, pavimenti in gres, magazzino di grande altezza predisposto per realizzazione solaio e ricavo altro piano con servizi igienici/docce, pavimento in massetto c.a. al quarzo, finestre con vetrocamera, portoni scorrevoli, porte d’emergenza. Piano 1° con accesso da due scale esterne indipendenti, trovasi due appartamenti, di cui uno al grezzo, di medie dimensioni entrambi con ampia terrazza/veranda esclusiva e due garages al piano terra.
Chiama al 389-2509377 Sandro Geom. Sturaro
Prezzo euro 50.000,00 Trattabilihttps://youtu.be/qjBijd0EWiE





















